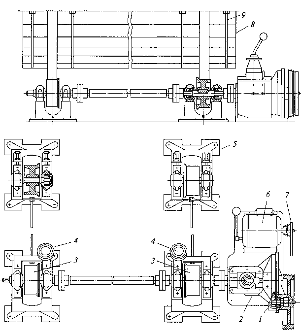
Сушилка для окончательной сушки представляет собой пятиярусную камеру и состоит из привода, механизма перемещения бастунов, систем подогрева и вентиляции сушильного агента.
Конструкция каркаса, привода и обшивок аналогична одноименным сборочным единицам сушилки для предварительной сушки с той лишь разницей, что привод осуществляется от электродвигателя большей мощности и имеет такой же червячный редуктор РГУ-120, но с большим межосевым расстоянием.
Между первым и вторым, а также между четвертым и пятым ярусами в зонах, где циркулирует сушильный агент, размещено восемь батарей калориферов в виде ребристых труб. Обогрев сушилки осуществляется с частичной рециркуляцией отработанной воды при помощи такого же центробежного насоса, как и в сушилке для предварительной сушки. Для исключения конденсации водяных паров под сушилкой уложены трубы, по которым проходит горячая вода
По всей длине сушилку опоясывают четыре воздушных канала шириной 1635 и глубиной 383 мм, которые образуют в сушилке четыре зоны сушки. На наружных стенках воздушных каналов имеются прямоугольные отверстия с заслонками для поступления свежего и удаления отработанного воздуха. Внутри каждого из трех каналов по обеим сторонам сушилки размещено по два центробежных вентилятора производительностью по 6000 м3/ч, создающих циркуляцию сушильного агента в зонах. Для равномерного распределения сушильного агента по зонам в каждом воздушном канале после калориферов установлены распределительные решетки.
Нижний, пятый, ярус сушилки имеет удлиненный гребенчатый конвейер, размещенный в специальном туннеле, который связывает сушилку для окончательной сушки с накопителем-стабилизатором. В средней части по бокам туннеля установлено два осевых вентилятора производительностью по 2000 м3/ч. Вентиляторы забирают воздух из помещения, прогоняют его через калориферы и создают в туннеле воздушную завесу, которая препятствует свободному поступлению воздуха помещения в сушилку со стороны накопителя-стабилизатора, что предотвращает нарушение режима сушки, а также позволяет охлаждать высушенные изделия до их поступления в накопитель.
Привод сушилки для окончательной сушки изделий, поступающих на бастунах из сушилки для предварительной сушки, включается кулачком, установленным на валу вертикального перемещения гребенок.
Механизм перемещения бастунов представляет собой зубчатые гребенки, расположенные в пять ярусов по длине сушилки. Расстояние между ярусами 693 мм. Для перемещения гребенок имеются две группы рамок — наружная и внутренняя. Гребенки первого, третьего и пятого ярусов прикреплены к внутренним рамкам, второго и четвертого — к наружным. Рамки навешены на эксцентрики вертикального перемещения. Эксцентрики внутренних и наружных рамок развернуты между собой на 180°, поэтому при подъеме одной группы рамок с гребенками на шаг 33 мм другая группа рамок опускается на такой же шаг. При движении вперед гребенок нечетных ярусов гребенки четных ярусов движутся назад и наоборот. Зубья гребенок одновременно захватывают на ярусе все бастуны и продвигают их по направляющим на один шаг,
Рис. 4.22. Циклограммы движения гребенок в сушилках для окончательной сушки:
а — первого, третьего и пятого ярусов; б — второго и четвертого ярусов
равный 40 мм. Рамки с гребенками совершают периодическое движение по замкнутому четырехугольнику (рис. 4.22): вверх, вперед, вниз, назад. Как и в сушилке для предварительной сушки, для исключения сбоя бастуна с шага при его вертикальном перемещении в цикле движения гребенок предусмотрен возврат на 4 мм.
На обоих концах ярусов установлены цепные конвейеры, передающие бастуны с яруса на ярус и блокирующие гребенки. Бастуны цепным конвейером опускаются в седловины, которые закреплены в начале всех ярусов, кроме первого, на направляющих. Блокирующие гребенки не позволяют бастуну перескочить седловину и удерживают его до подхода гребенки-захвата для последующего перемещения бастуна по направляющим. Бастуны последовательно проходят все пять ярусов сверху вниз и в конце последнего яруса передаются вертикально-цепным конвейером в накопитель-стабилизатор.
Движение цепных конвейеров согласовано с перемещением гребенок. В случае попадания на цепи конвейера перекладки одновременно двух бастунов предохранительные муфты блокируют привод сушилки и включают сигнал тревоги.
Бастуны с изделиями, перемещаясь с яруса на ярус, встречают на своем пути вентилируемые зоны сушки и невентилируемые зоны (зоны отволаживания). Такое чередование обеспечивает равномерное удаление влаги из продукта. Необходимо отметить, что активное удаление влаги из продукта под действием потока сушильного агента занимает около трети всего времени, затрачиваемого на пребывание изделий в камере. Остальное время изделия находятся в среде, где нет движения сушильного агента. Изделия, высушенные до влажности 13,5%, поступают в накопитель-стабилизатор.
Конвейерные сушилки автоматизированных линий ЛМВ по своей конструкции не отличаются от сушилок автоматизированных линий ЛМГ, только сушилка для окончательной сушки в линиях
Скорость движения лент V и продолжительность сушки т для макаронных изделий на конвейерных сушилках
Номер ленты сверху | Марка сушилки | |||||
КСК-45 | КСК-90 | |||||
V, м/мин | т, мин | 2 | V, м/мин | X, мин | 2 | |
1-я | 0,65…0,74 | 6,9 …6,1 | 27/15* | 1,4… 1,5 | 6,4…6 | 27/15* |
2-я | 0,35…0,4 | 12,8…11,2 | 27/24* | 0,8…0,9 | 11,3-10 | 27/21* |
3-я | 0,32…0,35 | 14,1…12,8 | 27 | 0,7… 0,75 | 12,9-12 | 27 |
4-я | 0,28…0,3 | 16,1…15 | 53 | 0,6…0,64 | 15-14,1 | 58 |
5-я | 0,24…0,26 | 18,8… 17,3 | 60 | 0,5…0,56 | 18…16,1 | 60 |
* В числителе — количество зубьев I для звездочек, поставляемых заводом; в знаменателе — рекомендуемое количество. Шаг звездочек 15,875 мм.
ЛМВ на 6280 мм короче, имеет площадь нагрева калориферов 224 м2 и в ней размещено 3013 бастунов. Современные автоматизированные линии других модификаций могут иметь одноярусную сушилку для предварительной сушки и многоярусную для окончательной сушки.
Производительность конвейерных ленточных сушилок Пл (кг/с) определяют по формуле:
Пл = LhvpнК1К2,
где L — ширина транспортной ленты, м; h — высота слоя продукта на ленте, м; v — скорость движения транспортной ленты, м/с (табл. 4.3); рн — насыпная плотность, кг/м3 (рн = 300…400 кг/м3); К1 — коэффициент, учитывающий использование площади сушильных лент (Кх = 0,9); К2 — коэффициент, учитывающий неравномерность загрузки сушилки (К2 = 0,95).
Барабанные сушилки
Барабанная сушилка «Ромет» (рис. 4.23, а) установлена в автоматизированных линиях и представляет собой два сетчатых цилиндра (барабана) 1 и 2 диаметром 1600 и 2400 мм, вставленных один в другой. Крепление барабанов между собой осуществляется с помощью 9 ободов и 24 поперечных стяжек. Для придания конструкции необходимой жесткости по наружному периметру каждого барабана установлены шесть обручей со специальными зажимными устройствами.
Внутреннее пространство между барабанами разделено металлическими перегородками 1 (рис. 4.23, б) на секции, каждая из которых по всей длине, в свою очередь, разделена специальными
Рис. 4.23. Барабанная сушилка фирмы «Ромет»: а — схема; б — ячейки
изогнутыми профилями 2 на отдельные ячейки с окнами 3 (50 ячеек). Такая конструкция при вращении барабана способствует перемещению продукта в ячейках и постепенному его движению вдоль секции. За один оборот барабана изделия перемещаются из одной ячейки в другую, а за 50 оборотов изделия проходят последовательно через все ячейки одной секции.
В автоматизированной линии последовательно установлены 3… 4 барабанные сушилки, которые для обеспечения необходимых технологических режимов сушильного процесса закрыты теплоизолирующими панелями. Между верхним перекрытием и сушильными барабанами расположены осевые вентиляторы и батареи калориферов. На каждую сушилку приходится шесть осевых вентиляторов мощностью 1,1 кВт каждый и по одному центробежному отсасывающему вентилятору мощностью 0,37 кВт (установлен на верхнем перекрытии). Обеспечение горячей водой всей системы линии осуществляется насосом мощностью 1,1 кВт.
Количество воздуха, поступающего в сушилку и удаляемого из нее, регулируется автоматически в заранее заданных соотношениях. Для этого в верхнем перекрытии над каждой сушилкой имеются по три отверстия для забора свежего воздуха, каждое из которых перекрывается шиберами при помощи систем тяг и редуктора. На всасывающем патрубке центробежного вентилятора также установлен шибер.
Из вибрационного подсушивателя изделия по двум вибрирующим лоткам поступают в первый сушильный барабан. Для этого в обшивке торцевой части сушильного туннеля предусмотрены два загрузочных окна размерами 300 х400 мм. Вибрирующие лотки установлены на гибких вертикальных опорах на полу помещения. Перемещение продукта из одной сушилки в другую осуществляется с помощью перегрузочного устройства, которое имеет сборные вертикальный и наклонный лотки.
Сушильный барабан установлен на четырех роликах (рис. 4.24), из которых два приводные 3. Ролики расположены на разной высоте и на специальных опорах. Для исключения осевого смещения барабана 8 опоры 5 имеют по направляющему ролику 4. Привод барабана осуществляется от электродвигателя 6 мощностью 0,55 кВт, клиноременной передачи 7, одноступенчатого цилиндрического редуктора 7 и четырехскоростной коробки передач 2.
Рис. 4.24. Сушильный барабан
Рис. 4.25. Схема шкафной сушилки ФИС
Частота вращения барабана регулируется в четырех диапазонах: 0,5; 1; 1,5 и 2 мин-1. Минимальная продолжительность сушки в барабанной сушилке 25 мин, максимальная —100 мин.
Шкафная сушилка ФИС предназначена для сушки коротких макаронных изделий способом обдувки нагретым воздухом продукта, размещенного на специальных низкобортных рамках — лотках с сетчатым днищем, размещенных в вагонетках. На рис. 4.25 представлена схема шкафной сушилки ФИС вместимостью 140… 170 кг готовой продукции (две вагонетки).
Сушилка представляет собой теплоизолированную прямоугольную камеру 1 с габаритными размерами 2500x1400x2600 мм и двумя плотно закрывающимися дверными створками. По высоте камера (шкаф) разделена на две зоны горизонтальной перегородкой. В верхней части высотой около 700 мм по оси шкафа размещен блок вентиляторов 5.
Как правило, устанавливаются 2…3 осевых реверсивных вентилятора № 4 или № 5 с частотой вращения 1400 мин”1. Параллельно вентиляторам установлен секционный электрокалорифер 6 мощностью 6…8 кВт (в качестве источника тепла возможно использовать паровые или водяные калориферы). Внутри камеры (по бокам) установлены наклонные направляющие 3, обеспечивающие равномерное распределение и направление тепловых воздушных потоков на находящиеся на лотках изделия, которые установлены в стопы по 26… 28 шт. В нижней части сушилки имеются отверстия с регулируемой заслонкой 7для подачи воздуха из помещения; в верхней части (на перекрытии шкафа) установлен центробежный вентилятор 2 для выброса увлажненного воздуха из камеры сушилки.
Рамка-лоток размерами 1200×600 мм имеет деревянный каркас, стянутый для прочности двумя стяжками и обтянутый полимерной или нержавеющей сеткой с живым сечением не более 1,5 х 1,5 мм. Высота каркаса с четырьмя деревянными ограничителями, закрепленными на углах, составляет 50…55 мм. Рамки с макаронными изделиями массой 2,5… 3 кг на каждом лотке размещаются одна над другой и устанавливаются в стопы 4 на специальной металлической тележке с четырьмя поворотными колесами для перемещения. Сушка макарон осуществляется при плотно закрытых дверях сушильной камеры при температуре 45…65 °С и относительной влажности воздуха 50…60% по специально запрограммированному режиму за 6…8 ч.
Шкафная сушилка ВВП предназначена для длинных макаронных изделий и представляет собой закрытый с трех сторон шкаф 1 имеющий вертикальный канал 6 для прохода воздуха и гнездо для установки сушильных кассет с продукцией 2. Открытая часть шкафа служит для загрузки и выгрузки продукции, а также для поступления и удаления воздуха (рис. 4.26). В верхней части расположен кожух, в котором установлены реверсивный вентилятор 4 с электродвигателем 3 и коллектор 5 для направления воздуха в вертикальный канал 6. Внутри кожуха установлен осевой реверсивный вентилятор № 7.
Каркас сушильной камеры изготовлен из деревянных брусков, обшит фанерой и стянут для прочности болтами.
Для уменьшения потерь напора воздуха при изменении его направления воздушный канал внутри камеры имеет обтекаемую форму, что уменьшает нежелательные завихрения воздушного потока и позволяет равномерно распределять воздух по сечению камеры.
Рис. 4.26. Шкафная сушилка ВВП
В камере может быть установлено 156 двойных или 312 одинарных кассет, при этом по ширине камера вмещает 3 ряда кассет по высоте — 26 рядов; по длине — два ряда двойных кассет и четыре ряда одинарных. Рабочий объем сушильной камеры около 2 м3.
Осевой реверсивный вентилятор диаметром 700 мм имеет восемь установленных на ступице диаметром 350 мм лопастей, каждая длиной 175 мм и шириной 130 мм. Лопасти вентилятора изготовляют из листовой стали толщиной 2 мм или многослойной фанеры толщиной 10 мм и закрепляют на ступице под углом поворота 18….27 градусов
Крыльчатку вентилятора устанавливают в специальном коллекторе обтекаемой формы, направляющем поток воздуха в вертикальный канал. Применение коллектора обеспечивает лучшие условия для работы вентилятора и способствует повышению его КПД. Зазор между крыльчаткой вентилятора и внутренним диаметром
Сушка макарон осуществляется при температуре 35…40°С и относительной влажности воздуха 60…80%. Кассеты с макаронами подаются от установки для резки и раскладки макарон или от разделочного стола на конвейере или в вагонетках в сушильное помещение и штабелируются в сушильной камере. Реверсивный вентилятор вращается в одну сторону, забирает воздух из цеха и, направляя его по вертикальному воздушному каналу, нагнетает под давлением 0,15…0,2 кПа через слой изделий. Затем следует кратковременная остановка вентилятора и вновь его включение с вращением в обратную сторону, при этом направление воздушного потока противоположно первоначальному. Далее цикл повторяется.
Продолжительность одного цикла по операциям 90 мин (30 + + 15 + 30+15). Реверсирование вентиляторов производится при помощи командно-электрического прибора, устанавливаемого на 5…
Организация процесса реверсии воздушного потока в сушильной камере позволяет более равномерно проводить обдувку продукта и избегать застойных зон для испарения из него влаги. Общая продолжительность процесса сушки 14… 16 ч.
Кассеты с высушенными макаронами вынимают и транспортируют в фасовочное отделение, а шкафы вновь заполняют сырыми изделиями. Шкафы в сушильных помещениях устанавливают, как правило, в две линии загрузочной стороной друг к другу, с необходимым проходом между ними (2…3 м) для их загрузки и выгрузки.
Рис. 4.27. Схема сушилки ЛС2-А
В шкафных сушилках используют лотковые деревянные или металлические кассеты. Размеры деревянных кассет (мм): одинарных 225x365x70, двойных 454x365x70; вместимость по сухим изделиям в зависимости от ассортимента соответственно 2…2,5 и 4… 5 кг. Металлические кассеты изготовляют из алюминиевых листов марки Д1-АМ-2,5 размерами 225x364x68 мм, массой 0,88 кг. Вместимость кассеты по сухим изделиям 2…2,5 кг.
В целях организации поточного метода производства макарон с сушкой их в лотковых кассетах и ликвидации ручного труда при работе на шкафных сушилках применяются механизированные туннельные сушилки для длинных макаронных изделий.
Особенность таких сушилок состоит в том, что кассеты с полуфабрикатом устанавливают в стопки на цепные конвейеры, которые при движении проходят вдоль вентиляционных установок. Для обеспечения необходимых температурных режимов конвейеры с изделиями и вентиляционные установки изолируют от сушильного помещения с помощью металлического каркаса, облицованного термоизоляционными плитами. Загрузка кассет полуфабрикатом производится с одного конца туннеля, выгрузка — с противоположного.
Одной из таких сушилок является сушилка ЛС2-А, состоящая из следующих основных частей (рис. 4.27): сушильного туннеля 7с комплектом осевых вентиляторов 5, двух цепных конвейеров 18 для перемещения продукта, конвейера 6 возврата пустых кассет, вентиляционной системы для подачи воздуха в сушильный туннель и удаления из него отработанного воздуха с помощью вентилятора 14.
Сушильный туннель представляет собой сборный металлический каркас, облицованный термоизоляционными щитами, каждый из которых имеет деревянную раму, заполненную пенопластом толщиной 40 мм. С наружной стороны щит облицован декоративным пластиком толщиной 2 мм, с внутренней — листами алюминия толщиной 2мм
Внутри туннеля по всей его длине установлены вплотную друг к другу 12 шкафов, в каждом из которых смонтировано по два осевых вентилятора № 7. Осевые вентиляторы в шкафах установлены так, что направление движения воздуха от рядом стоящих шкафов противоположно. Этим достигается изменение направления обдувки воздухом макарон при их перемещении.
С обеих сторон шкафов через весь туннель проходят два цепных конвейера для перемещения продукта. Со стороны загрузки сушилки конвейеры выходят из нее на 1300 мм, со стороны выгрузки к цепным конвейерам установлены роликовые конвейеры 9 длиной 7000 мм. Роликовые конвейеры служат накопителями готовой продукции.
Привод цепного конвейера осуществляется от электродвигателя 13 мощностью 0,27 кВт, с частотой вращения 1400 мин-1 через клиноременный вариатор скорости 12 и три последовательно установленных редуктора 11. Вариатор позволяет изменять скорость движения цепных конвейеров от 0,6 до 1,8 м/ч.
Ленточный конвейер возврата длиной 2500 мм расположен в двух горизонтальных и одной наклонной плоскостях, его скорость движения 0,2 м/с. Привод ленточного конвейера осуществляется от электродвигателя 4 мощностью 0,6 кВт с частотой вращения 1420 мин-1 через клиноременную передачу и редуктор РЧУ-63-А 3.
Теплый воздух в сушильную камеру при расходе 7000 м3/ч подается по воздуховоду 17 центробежным вентилятором № 5 16 через калорифер 15 с поверхностью нагрева 30,4 м2. Удаление отработанного воздуха из верхней зоны сушилки в конце туннеля осуществляется центробежными вентиляторами № 4 и 14 при расходе 6000 м3/ч. Необходимым условием работы сушилки является некоторое избыточное давление воздуха внутри сушильного туннеля, при этом не допускается приток воздуха в сушилку через
Сушильный туннель разделен на две зоны сушки: первая со стороны входа в туннель — зона предварительной сушки изделий, в ней расположено два шкафа; вторая — зона окончательной сушки, включает десять шкафов. Зоны сушки разделены между собой перегородкой, а для прохода через них кассет имеются створки.
В обеих зонах сушильного туннеля автоматически поддерживаются необходимая температура (35…41 °С) и относительная влажность сушильного агента (55…85%) путем регулировки работы калорифера и электромагнитного вентиля. Расход теплоты на сушку изделий (2… 2,1)106 кДж/ч.
Работа сушилки осуществляется в следующем порядке. На два конвейера штабелируются вплотную друг к другу стопки кассет 2 с сырыми макаронами по 22 кассеты в высоту и по две в ширину на каждый конвейер. Всего в сушилке устанавливаются до 1816 кассет с продуктом. По мере движения конвейера кассеты своей массой открывают створки сушильного туннеля и обдуваются воздушным потоком от осевых вентиляторов.
После сушки кассеты 10 с высушенными макаронами поступают с цепных конвейеров на роликовые, с которых изделия направляются на упаковывание.
Возврат пустых кассет производится ленточным конвейером, который имеет направление, противоположное цепным конвейерам. Кассеты 8 по одной укладываются на горизонтальную часть ленточного конвейера, расположенного между роликовыми конвейерами, затем перемещаются над сушильным туннелем к лотку 1 для спуска их к месту загрузки. Скатываясь по лотку, кассеты могут накапливаться в его горизонтальной части, поэтому при заполнении лотка кассетами под действием их массы подвижная часть горизонтальной направляющей лотка опускается, срабатывает конечный выключатель, который останавливает конвейер возврата кассет.
Производительность сушилки Пс (кг/с) определяют по формуле:
Пс=G1/Tc
где G1 — вместимость сушилки, кг (G’ =n’g’, где п’ — число кассет в сушилке; g’ — вместимость одной кассеты, кг); тс — продолжительность сушки, с.
Продолжительность сушки тс (с) определяют по формуле:
Tc=nl/v
где n — число вентиляционных установок в ряду; l — длина одной вентиляционной установки, м; V — скорость движения цепных конвейеров, м/с.
Особенности обслуживания сушилок
Для эффективного использования сушилок в макаронной отрасли необходимо осуществить следующие мероприятия:
установить скорость движения конвейерных лент в соответствии с необходимой продолжительностью сушки макаронных изделий (см. табл. 4.3);
для предотвращения просыпания изделий и уменьшения количества отходов рекомендуются сетки, диаметр отверстий которых не превышает минимальный диаметр продукта;
для более надежной фиксации конвейерной ленты на барабанах и увеличения срока ее службы края ленты обклеить полосками из фильтр-бельтинга шириной 240 и толщиной 2 мм (в качестве клея можно использовать поливинилацетатную эмульсию);
для предотвращения попадания в изделия металлических примесей над выводным лотком сушилки установить магниты;
регулярно следить за наличием воды в бачках психрометра, производить смазку всех механизмов сушилки, поддерживать постоянное давление пара, контролировать натяжение лент конвейеров;
щитки в местах пересыпания продукта с ленты на ленту должны быть плотно подогнаны к лентам во избежание просыпания продукта и попадания сырого продукта в сухой;
периодически, не реже одного раза в неделю, при остановке сушилки очищать сушильную камеру и калориферы от мучели и россыпей;
при работе сушилок дверцы и щитки камер должны быть плотно закрыты.
Режим сушки изделий в сушилках устанавливается по программе и в зависимости от ассортимента продукта.

Останні коментарі